设为首页 | 加入收藏  
    首页   |   走进志龙   |   新闻中心   |   项目展示   |   租赁信息   |   人才招聘   |   在线办公   |   联系我们
全站搜索:
         项目展示
     志龙·白市苑     
     志龙·玖嘉怡     
     轻轨·志龙居     
     志龙·石坪苑     
     志龙·花园大厦     
     志龙大厦     
     九龙大厦     
     阳光心悦     
     倚林佳园     
     志龙·观江嶺     
当前位置:主页 >> 项目展示
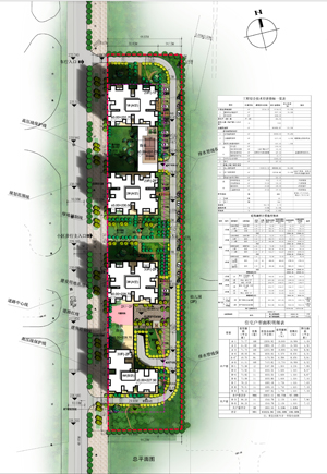
新起点

    新起点项目位于重庆市南岸区桃源路,重庆市南坪I11-1-2/04地块。地块规划用地面积10194平方米,地块用地性质为R2-二类居住用地。该地块长约300米,宽约50米。总建筑面积81822平方米,由二幢29层和二幢30层四幢楼组成。2012年12月18日开盘预售。
 
 
 
 
 
 
 
 
 
 
 
 
 
 
 
 
 
 
 
 

 

版权所有 Copyright© 2010 重庆志龙建设开发有限公司 联系电话:023-68424888 渝ICP备14002816号-1
渝公网安备50010702506274